DIGITAL ARCHITECTURAL PORTFOLIO
DIGITAL ARCHITECTURAL PORTFOLIO

Schnippers Restaurant - New York Times Building, 620 8th Ave., NYC

New York Design Architects

 

Fast food restaurant. Full set of construction documents: architectural, mechanical, plumbing, sprinklers and kitchen equipment.

 

CAD by: Digital Architectural Portfolio 

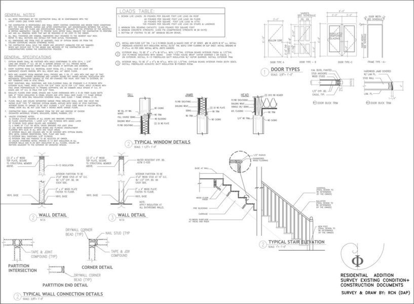
Residential - Franklin Township, NJ

Jimmy Dumas Architecture

 

CAD by: Digital Architectural Portfolio

Addition and renovation. Typical set of drawings from existing conditions survey to construction documents.

Temple Emanuel - Westfield, NJ

Feitlowitz & Kosten Architects

 

CAD by: Digital Architectural Portfolio

Addition and renovation

 

https://www.facebook.com/AutoCAD/
max

DIGITAL ARCHITECTURAL PORTFOLIO

 

Please contact us using our contact form.

Print | Sitemap
© DIGITAL ARCHITECTURAL PORTFOLIO

E-mail